旧房翻新
全部频道
装修案例
ITD设计总监
全案整装
旧房翻新
VR案例
热装楼盘
高定设计
最新热门活动
严选建材
施工工艺
装修痛点
设计总监
关于我们
联系我们
售后服务
装修资讯
免费报价
ITD高端定制工作室
老房/二手房 问题多多
亟需改造
墅宅翻新复杂,
业主最核心的4大诉求
专业翻改22年
你担心的我们都知道
安全升级 精工筑家 刷新你的墅宅生活
专属星耀墅级工艺,为家装品质
22年旧房改造
收纳升级 全屋改造
扩容不止30%
一键领取 墅宅翻新规划
设计师N对1 VIP服务
功能升级
打造科学墅居环境
硬装改造、结构优化、布局设置、为生活减重
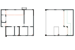
雍锦府 229㎡
户型解析:
设计师顺应业主好客的个性,设计师重新布局动线,将公共领域的比例扩充,打破原户型的局限,做了以下改造:
A.首先,将厨房与阳台的隔断拆除,使厨房空间成为一个整体,操作动线更长,方便使用。
B.一楼儿子房的阳台扩容进室内并改造成一处小型学习区域,同理将客厅的阳台也扩容进室内,提升空间利用率。
C.二楼主卧增设一间开放式书房,起居办公两不误,同时多面穹顶立柜满足全家的收纳需求。
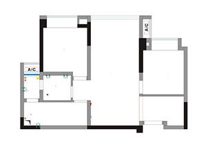
皇家尊邸 220㎡ 4室3厅2卫
户型解析:
本案是一套顶跃,业主一家对于生活品质要求极高。喜爱轻奢的格调同时对收纳有着大量需求,基于此,我们在原始户型结构上进行了一系列的调整:
a.在不影响次卧舒适度的情况下,规划出部分空间用做楼梯,同时将衣帽间纳入次卧内,不仅扩大了原有卧室面积,还增加了更多的储物功能;
B.根据业主需求,我们对二楼进行了重新规划,新建墙体隔成一间含独立衣帽间的超大主卧,以及一间宽敞的公共活动区域,强大的功能体系满足了业主对于高品质生活的需求。
东城国际 155㎡ 4室2厅3卫
户型解析:
本案原户型是一个清水挑高跃层,但由于空间布局较为凌乱,导致整体采光差、居住体验感差,业主这次找我们,希望能够基于一家人的需求进行一次大改造:
a.首先将原卧室区域改为餐厅空间,不仅留出用餐空间且整个一楼公共区域更显大气、通透。
b.由于业主家常住人口较多,所以我们在客厅挑高的基础上做了平台搭建,增加儿童房,提升空间利用率。
c.将原玄关处挑高处做搭建,增加女儿房衣帽间功能;为了打造出一个功能完备的主卧套房,我们将主卫面积缩小,增加独立衣帽间。
客餐厅
卫生间
中西厨
起居室
露台阳台
地下室
我也要房屋改造>>>
墅宅翻新改造
选择鑫佰利ITD的6大理由
品牌实力
22年专注别墅大宅整装
墅级设计体系
全案定制
筑高端生活方式
严格施工标准
不达标砸掉重做
星耀工艺
12段验收工艺
66项别墅专属施工
工艺细节
高端建材
环球优质品牌联盟
管家式售后
一键直达总经办
2小时内有响应
24小时内解决